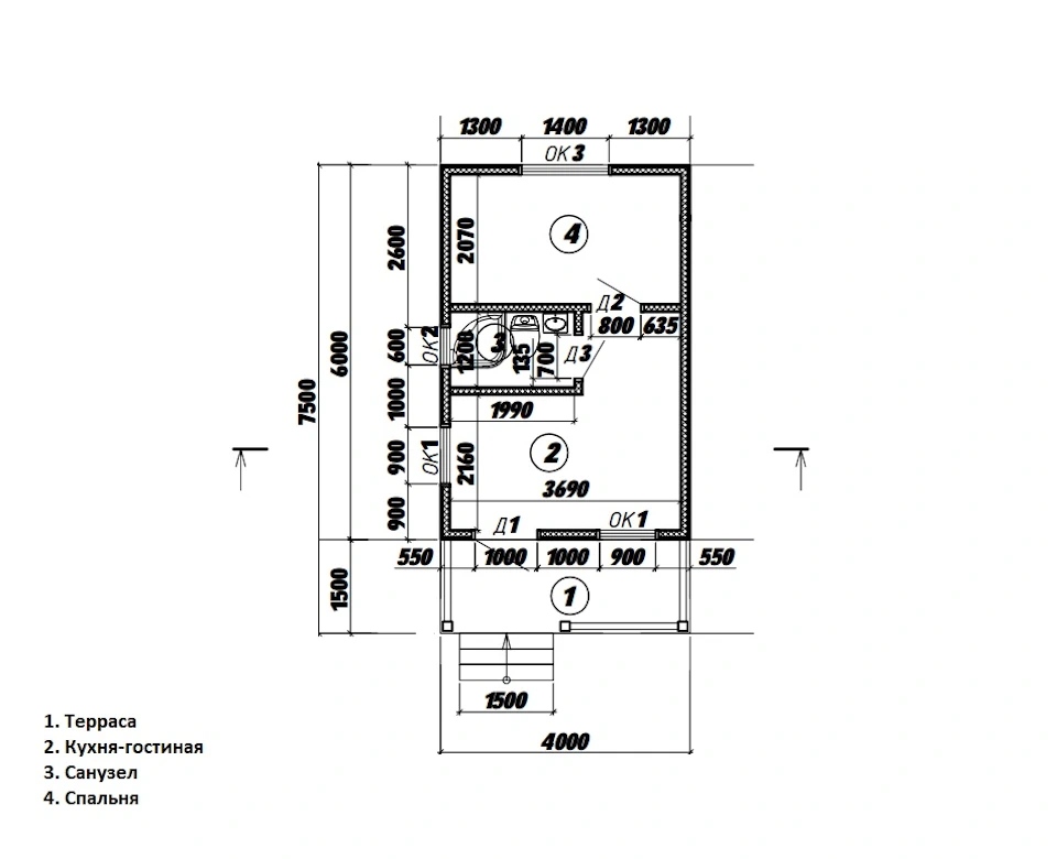
Каркасный дом 30 м.кв (4 на 7.5 метров)


Компактный проект включает в себя всё необходимое для комфортного проживания: кухню-гостиную (10.1 м.кв.), спальню (7.6 м.кв.), санузел (2.4 м.кв.) и террасу (6 м.кв.).
Дом будут использовать как гостевой. В базовую планировку внесли изменения, увеличив площадь кухни-гостиной за счет спальни и увеличили ширину террасы.
К базовой комплектации «С внутренней отделкой» добавили:
- наружная покраска дома и террасы
- водосточная система
- печь-камин
- внутренняя разводка электрики
- монтаж точек водоснабжения и канализации
- монтаж септика, внешнее подключение водоснабжения
- ввод электрики в дом от столба.
Компания "Дбрус" рада предложить вам свои услуги по строительству каркасных домов в Минске и по всей территории Беларуси. Мы специализируемся на создании высококачественных, энергоэффективных и экологически чистых домов, которые станут настоящим украшением любого участка.
Наши преимущества:
Быстрое строительство: Современные технологии позволяют нам возводить каркасные дома в кратчайшие сроки.
Экономичность: Каркасные дома отличаются низкими эксплуатационными затратами, что обеспечивает значительную экономию для наших клиентов.
Энергоэффективность: Используемые нами материалы обладают отличными теплоизоляционными свойствами, что позволяет существенно снизить расходы на отопление.
Экологичность: В процессе строительства мы используем только безопасные для здоровья материалы.
Мы предлагаем полный спектр услуг от проектирования до сдачи дома "под ключ". Наша команда профессионалов готова воплотить в жизнь любые ваши пожелания, гарантируя высокое качество и надежность каждого проекта.
Если у вас возникли вопросы или вы хотите обсудить детали сотрудничества, пожалуйста, свяжитесь с нами по телефону или электронной почте.
С уважением, Команда "Дбрус"
Мы строим дома, в которых хочется жить!

Комментарии (0)