Дбрус

dbrus.by контакты +37529-311-44-05

dbrus.by контакты dbrus.by контакты dbrus.by контакты dbrus.by контакты
г. Минск ул. Ваупшасова 22

Строим каркасные и брусовые дома, выполняем реконструкции, индивидуальное проектирование,
работы по сносу и демонтажу
электромонтажные и сантехнические работы.
Работаем по 240 указу

Время работы: Вторник - Суббота 10:00 до 19:00 Выходные: Воскресенье и Понедельник.
Польский 101
Польский 101
Польский 101
Польский 101
Польский 101
Польский 101
Польский 101 Польский 101 Польский 101 Польский 101 Польский 101 Польский 101
Польский 101
от 88420 BYN

В кредит от 1600 руб/месяц

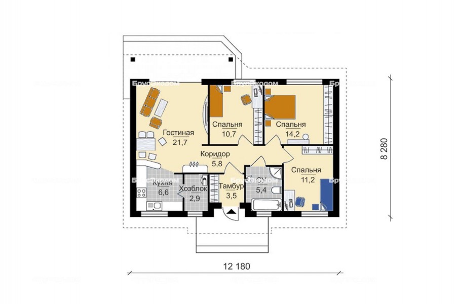
Одноэтажный дом для круглогодичного проживания. Планировка может быть изменена по желанию Заказчика.

В стоимость входит доставка и монтаж.

Кредит на покупку домокомплекта

Каталог: Коттеджи Артикул: 41

Параметры проекта Значение
габаритные размеры: 12,2 на 8,28
площадь застройки (м2): 120
общая площадь (м2): 101
жилая площадь (м2): 58
Получить консультацию
Перезвоните мне
Одноэтажный дом 12,2 на 8,3 метров. Данный дом может отлично выполнять, как функции дачного дома, так и дома для постоянного проживания. Данный проект дома одноэтажный с помещением под крышей, которое вы можете использовать для любых своих нужд. Дбрус готов построить этот дом по каркасной технологии или из клееного бруса.
 
Каркасный дом в стандартных комплектациях оборудуется стенами с утеплителем минеральная плитная вата толщиной от 150 до 200мм. Слоя минеральной ваты толщиной 150 мм вполне достаточно для постоянного проживания, однако при толщине ваты в 200 мм значительно снижаются затраты на отопление дома.
 
Дом из клееного бруса в базовых вариантах может быть возведен из бруса толщиной от 160 до 200мм. В своей работе мы используем высококачественный клееный брус прошедший обработку самыми современными огне-биозащитными составами.
 
Подробнее ознакомиться с вариантами комплектаций данного дома вы можете в разделе комплектации дома, там же Вы сможете подобрать комплектацию удовлетворяющую Ваши потребности.
 

Вопросы и комментарии (0)

Оставить комментарий или задайте вопрос нашим экспертам.

Использование HTML тегов запрещено.

Фотографии с готовых объектов